Storia
I nostri lavori
Progetti in costruzione
VIA GENTILI PORTO SAN GIORGIO
VIA MAURO MACCHI PORTO SAN GIORGIO
Contatti
Ricerca
Cerca per:
Ricerca
Lattanzi Costruzioni
La qualità a casa tua!
Facebook
E-mail
Instagram
Salta il contenuto
Storia
I nostri lavori
Progetti in costruzione
VIA GENTILI PORTO SAN GIORGIO
VIA MAURO MACCHI PORTO SAN GIORGIO
Contatti
Ricerca
Cerca per:
Ricerca
Home
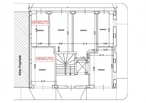
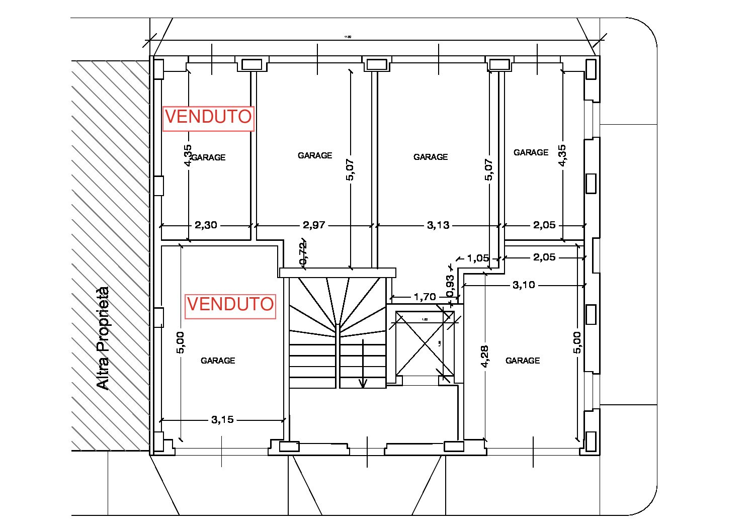
VIA GENTILI PORTO SAN GIORGIO
VIA GENTILI PORTO SAN GIORGIO
Disponibilità di appartamenti da 100 Mq con garage